Welcome to CADZONE — the UK’s trusted partner for Fire Alarm Zone Plans, AutoCAD Services, and Fire Safety Documentation. Backed by over 25 years of hands-on experience, we provide BS5839-1:2025-compliant plans tailored to commercial and industrial properties. Whether you need on-site surveys, as-fitted drawings, or evacuation plans, CADZONE is here to support your fire safety needs with precision and professionalism.
All of the documentation we produce is Guaranteed to be compliant with BS5839-1:2025 .
CADZONE provides specialist Fire Alarm System Design services tailored to your building's unique needs. We design conventional, addressable, and wireless FD&A systems in strict accordance with BS5839-1:2025. Our practical solutions ensure optimal fire detection and safety for commercial and industrial properties across the UK.
CADZONE offers expert AutoCAD services for the fire, intruder, and electrical sectors. Our team specializes in 2D design and technical drawings for fire alarm systems, ensuring full compliance with BS5839-1:2025. We create, amend, and optimize drawings tailored to the unique requirements of each project, delivering precision and clarity every time.
Ensure your fire safety documentation is accurate and up to date with CADZONE’s On-Site Fire Safety Surveys. Our experienced team reviews your fire alarm zone plans, evacuation routes, and as-fitted drawings, aligning everything with BS5839-1:2025 standards. Stay compliant and prepared with our professional survey services.
At CADZONE, we specialize in creating accurate, BS5839-1:2025-compliant Fire Alarm Zone Plans across the UK. Whether through detailed on-site surveys or digitizing your existing sketches, we deliver precise electronic and printed plans that enhance fire safety and emergency response. Trust the UK’s premier provider for reliable fire alarm documentation .
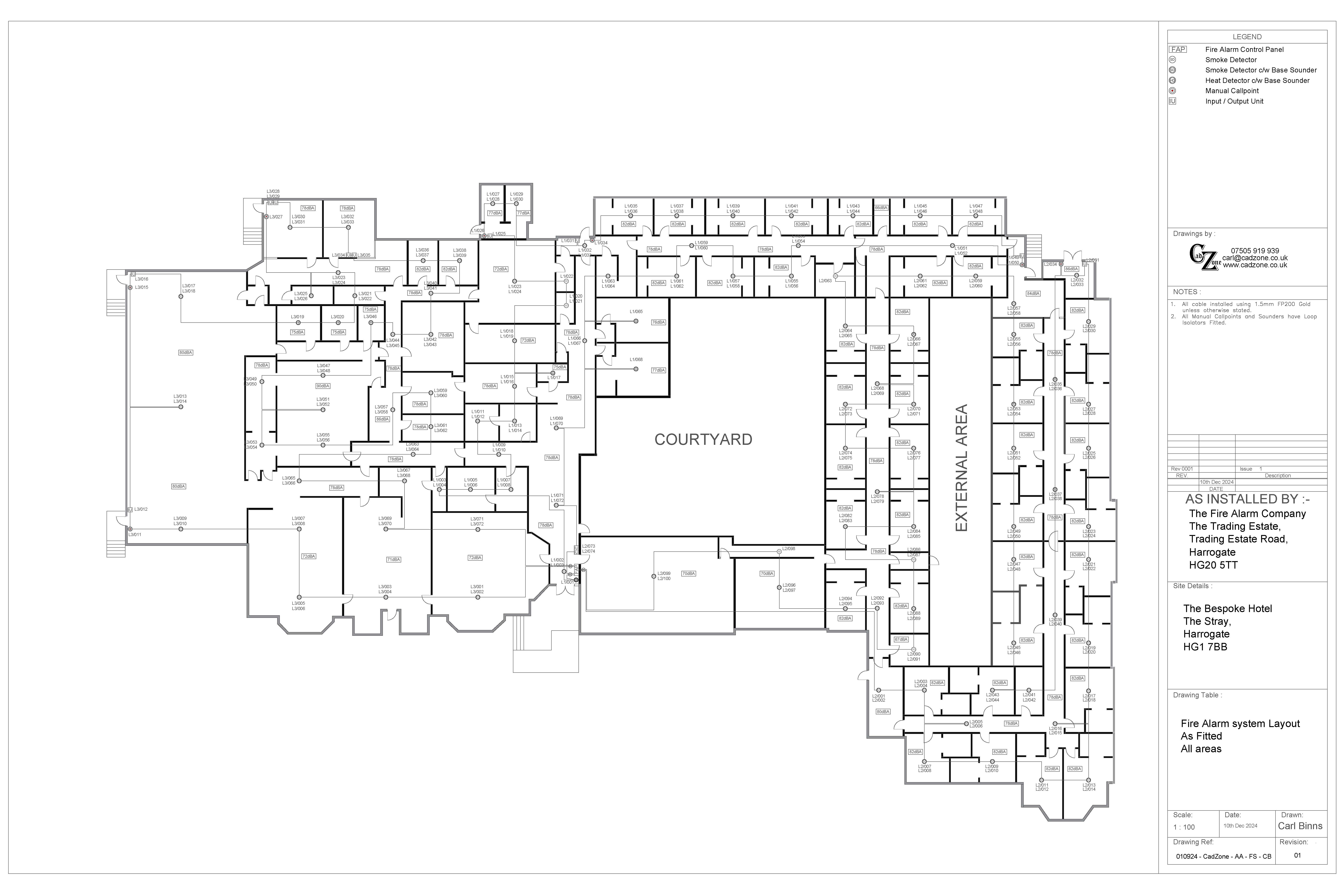
Our As-Fitted Drawings service at CADZONE documents the final installation of your fire alarm and intruder systems with precision. We produce BS5839-1:2025-compliant as-fitted plans, ensuring a smooth handover and clear records of all safety systems. Perfect for project closeouts, audits, and future upgrades
CADZONE creates Fire Evacuation Plans designed to comply with ISO 7010 and BS ISO 23601:2020. Our clear, professional escape plans provide building occupants with essential emergency information, ensuring safe and swift evacuation routes in case of fire. Tailored to your facility’s layout and safety requirements
“We sent them a sketch of the drawing we required. Within a very short time we recieved a completed As Fitted Drawing and Fire Alarm Zone Plan. Very responsive and so easy to deal with.
"Amended the existing drawings after works had been carried out. Great service. Recomended "