AS Fitted Drawings
What is an As Fitted Drawing .
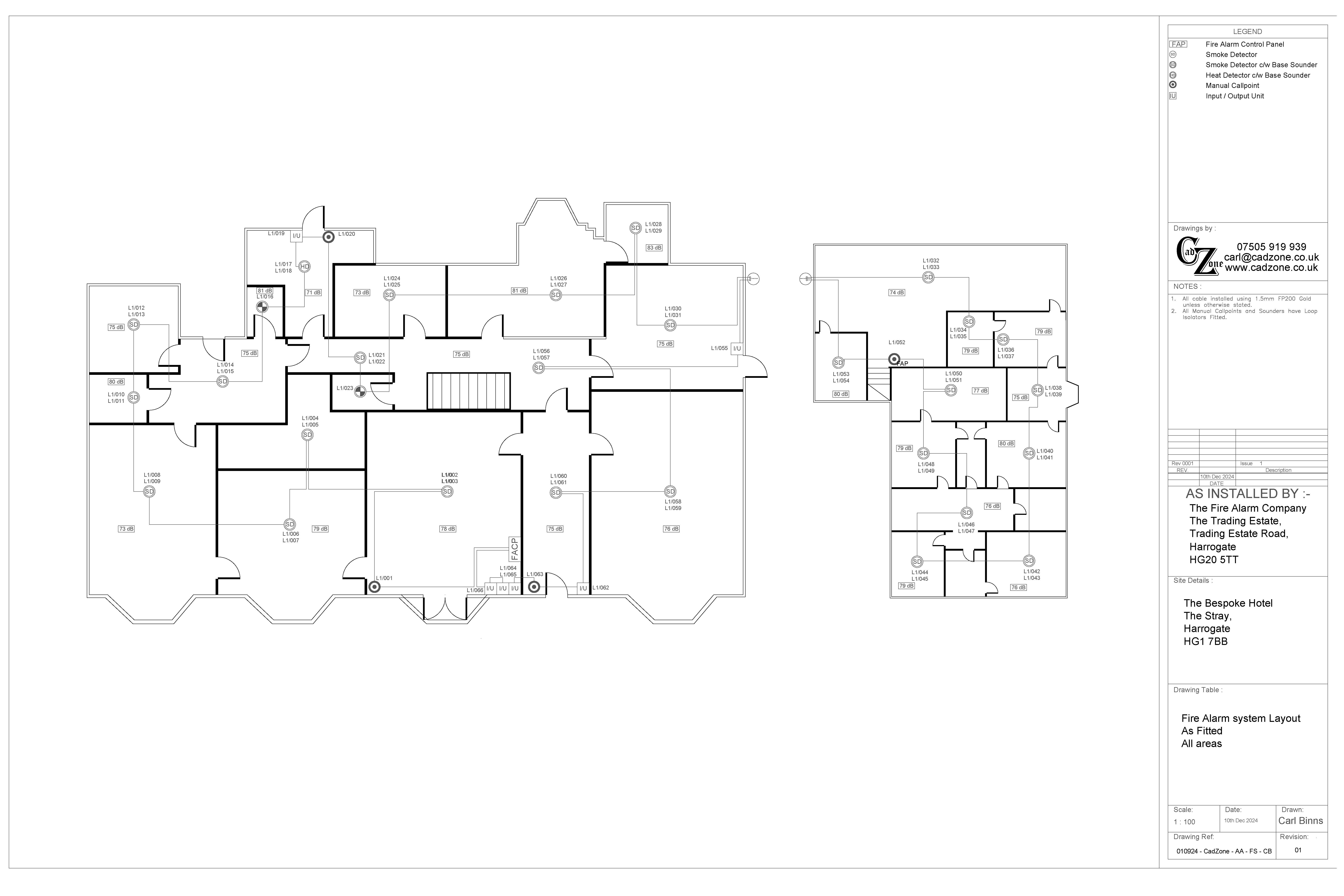
An As Fitted Drawing (also known as "As Built" Drawings) is a comprehensive technical document that precisely illustrates the exact layout and intricate details of an installed fire detection and alarm system after its complete installation. Under the BS 5839-1:2017 British standard for fire detection and fire alarm systems in non-domestic buildings, these drawings are critical for ensuring that a fire alarm system is meticulously documented, maintainable, and compliant with the highest safety standards.
What our As Fitted Drawings include .
* A side panel containing all the relevant details of the Drawing.
* All devices marked with loop and address numbers.
* A different symbol to identify each type of device and include a key or legend detailing the meaning of each symbol.
* All decibel readings taken when the system was commissioned.
* All Cable route will be clearly defined.
* All Installed Devices with their Loop and Device Numbers.
The Service We Provide
* We create your Professional As Fitted Drawings, from an existing Autocad DWG file or from a simple sketch of the Commissioned system proivded by you
* Our qualified Engineers visit site to compile the required information to create your Professional As Fitted Drawings of the Commissioned system.
Delivery options
Electronic file :- We send you via email a downladable Electronic file for you to print.
The BS5839-1:2025.
If you have any questions about any of the options abov for you to print.
Please ask about our many other service which include Fire Alarm Zone PLans,Fire Evacuation Plans, Fire Alarm System Design and General AutoCad draughting services.


